Tiny House Plageron

Conception d’une maison de vacances au Rayon-Canadel-sur-Mer

Client : Privé, Lieu : Le Rayol-Canadel-sur-MER (83), Budget : 100 000 euros HT, Surface : 23 m², Phase : ESQ

Comment faire lorsque les contraintes urbanistiques définissent une bande constructible de 2 mètres de large ?

​

Sur le modèle des « Tiny Houses » américaines ou encore des « Maisons Taupes » japonaises, AMBLA propose un logement de vacances conçu sur le principe « dedans-dehors » où l’extérieur est le prolongement de l’intérieur. Implantée dans la pente, l’habitation est orientée au Sud et offre une vue panoramique sur la Méditerranée et le paysage arboré des alentours.

​

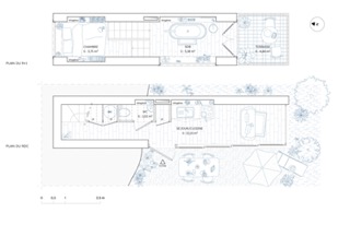
Le rez-de-chaussée, partiellement imbriqué dans la topographie dévoile un espace de jour en lien direct avec l’extérieur. La terrasse devient partie intégrante du salon. L’étage quant à lui est conçu dans l’esprit des suites d’hôtel. La chambre, lovée dans une alcôve, offre un cocon intimiste aux vacanciers. La salle de bains au centre de laquelle trône une baignoire îlot libérant la vue de tout obstacle, donne accès à un balcon sur la Méditerranée et ses paysages.

Plan de masse existant

Plan de masse projet

Coupe projet

Plans de niveaux

Pistes de recherche de la façade

Vue depuis la chambre

> Projets

Atelier d’architecture

CROA PACA : S22773 

OK

Ce site web utilise les cookies. Veuillez consulter notre politique de confidentialité pour plus de détails.